Quy trình để tạo ra một CLB bida đạt tiêu chuẩn?
"Việc gì làm 7 lần thì quen, 21 lần thì thành thạo, làm cả trăm lần thì ăn vào tâm trí!"
Và đó là lí do suốt hơn 10 năm qua chúng tôi chỉ làm chuyên tâm phục vụ nhu cầu thiết kế và thi công quán bida.

Quy trình – Chi phí – Mẫu đẹp 2026 mới nhất
1. Vì sao thiết kế & thi công CLB bida chuyên nghiệp rất quan trọng?
Tối ưu diện tích không gian: Tối ưu không gian & diện tích trong việc bố trí công năng, phù hợp với nhu cầu là điều khó, đòi hỏi người thiết kế vừa phải biết rất rõ chi tiết về diện tích của các sản phẩm đặt bên trong, cùng với đó cũng đòi hỏi phải biết được cách thức vận hành thì mới mong bố trí thuận tiện cho việc vận hành trong tương lai, mang lại cho CLB một bản vẽ bố trí mặt bằng đạt tiêu chuẩn, giúp ích rất nhiều cho việc vận hành sau này.
Giảm chi phí đầu tư sai: Điều này khi mới nghe qua tưởng chừng rất đơn giản ai cũng có thể làm được, nhưng khi biết mình đã làm sai một số điểm bất cập trong việc “Thi công CLB bida đẹp” thì hầu như các chủ cơ sở đều bỏ qua vì sợ tốn chi phí, và tất nhiên chi phí sửa sai sẽ cao hơn rất nhiều chi phí thiết kế một CLB bida tiêu chuẩn. Có được một bản vẽ thiết kế chi tiết sẽ cho cái nhìn tổng quan hơn trong việc lựa chọn nguyên vật liệu về giá, điều này cũng cần rất nhiều kinh nghiệm trong lĩnh vực thi công CLB bida cũng như vận hành một CLB bida, mang lại yếu tố thành công đông khách cho việc kinh doanh sau này.

Tăng trải nghiệm khách: Trải nghiệm khách hàng thoạt đầu nhìn vào sẽ thấy rất đơn giản, mình thấy CLB bida “đẹp” là được, nhưng thật ra không phải như vậy? Một CLB bida đẹp – tiêu chuẩn sẽ được quyết định bởi nhiều yếu tố, từ việc trải nghiệm của khách hàng phải dựa thực tế, đối tượng lứa tuổi phải được xác định rõ trước khi đưa vào thiết kế và thi công CLB bida, để hiểu được sở thích và hành vi của loại khách hàng, từ đó mới tăng cao được trải nghiệm của khách hàng. Dựa trên kinh nghiệm và trải nghiệm của người thiết kế ra CLB trước đây mới có được, còn việc lần đầu tiên làm thì sẽ không thể hình dung ra mình nên làm gì để cho trải nghiệm khách hàng tốt nhất.
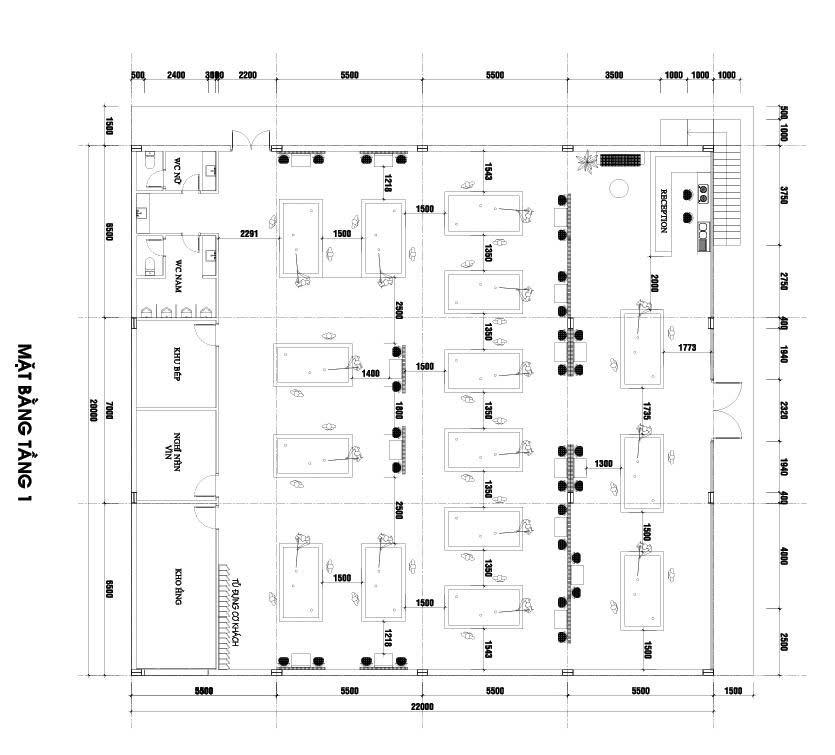
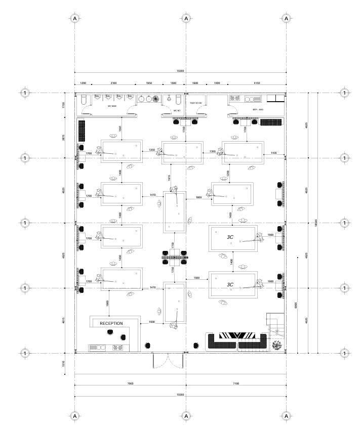
Chuẩn ánh sáng – chuẩn khoảng cách bàn: Đây là điều khó nhất trong việc thiết kế thi công CLB bida chuyên nghiệp, đa số các KTS vẽ nhà phố, villa biệt thự, nếu chưa trực tiếp thiết kế các mô hình F&B cũng sẽ rất khó hình dung, và việc KTS cũng là người có sở thích về môn bida và có kiến thức về môn thể thao này cũng đã là rất khó. Vậy nên để biết thế nào là chuẩn ánh sáng – chuẩn khoảng cách bàn bida đòi hỏi người thiết kế phải có các yếu tố trên cũng như đã từng phải thiết kế và thi công rất nhiều CLB. (Bản vẽ bố trí mặt bằng minh họa).

Tăng doanh thu & nâng tầm thương hiệu: Doanh thu và thương hiệu của một CLB bida trong lòng khách hàng được quyết định bởi nhiều yếu tố, nhưng nếu được thiết kế và thi công bài bản, chuẩn thi đấu, chuẩn tỷ lệ thì sẽ làm cho CLB thu hút được nhiều khách hàng hơn từ đó nâng tầm được vị thế trong lòng khách hàng, tăng trưởng doanh thu cũng như giữ chân khách hàng lâu dài. (Video và hình ảnh thực tế đông khách).
2. Các tiêu chuẩn “tỷ lệ vàng” thiết kế CLB bida (Chuẩn 2026)
Diện tích bàn & diện tích bố trí bàn:
-
Diện tích bàn: Ngang từ 1600mm đến 1750mm – Dài từ 2850mm – 3150mm tùy vào từng chủng loại bàn.
-
Quy chuẩn khoảng cách giữa các bàn: Bàn cách bàn tối thiểu 1300mm và bàn cách tường tối thiểu 1600mm.
-
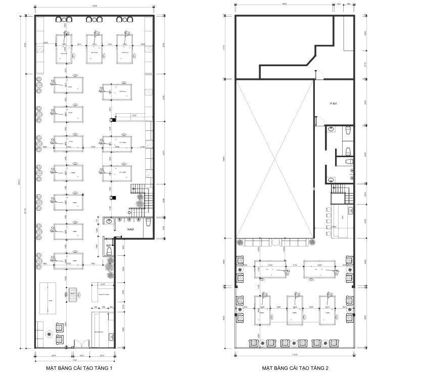
Diện tích tối thiểu cho từng loại bàn: Diện tích khu vực tùy vào mặt bằng có thông suốt hay không, với mô hình kinh doanh bida đặc thù là ngành nghề kinh doanh truyền thống, nên chiều ngang mặt bằng rất quan trọng. Ví dụ diện tích tối thiểu cho 1 bàn là 35m² đạt chuẩn, và với 200m² (10 x 20m) là 9 bàn…. (Đính kèm hình ảnh bố trí)
-
Tối ưu lối đi và khu vực chờ: Tùy vào diện tích cũng như quy mô của CLB bida, để thiết kế được CLB bida tiêu chuẩn thì lối đi phải là nơi khách hàng tự cảm nhận được và có khu vực để khách hàng chờ đợi bàn, hoặc ngồi trao đổi với nhau về giải đấu hoặc gắn kết được tình bạn trong lúc chơi bida. Thường sẽ từ 10m² trở lên tùy thuộc vào mặt bằng và đối tượng.

Mặt bằng bố trí mặt bằng vuông

Mặt bằng bố trí mặt bằng Bida cao cấp

Mặt bằng bố trí mặt bằng dọc

Mặt bằng bố trí cơ bản ngang 11 dài 20
Ánh sáng trong phòng bida (Yếu tố cực kỳ quan trọng)
-
Bố trí đèn khoa học: đây là yếu tố quyết định về độ sáng trên mặt bàn bida và các ánh sáng xung quanh, các ánh sáng trên bàn bida nên tuyệt đối là ánh sáng trắng để đủ ánh sáng cho người chơi, và cân đối các ánh sáng bên ngoài tôn lên được thiết kế bằng các ánh sáng màu để CLB bida mình mang tính chất giải trí xả stress cao.
"Hãy để chuyên gia trong lĩnh vực mà bạn có thể không làm tốt bằng họ" - Jess Baros
Tư vấn - 0902689777 (Mr Nam)
Liên hệ email: Trandinhnamanh1204@gmail.com
Tặng ngay gói vận hành cơ bản trong 7 ngày đầu tiên khi sử dụng dịch vụ


Trần – sàn – tường: Các chi tiết về trần, tường, sàn rất quan trọng, khi cả ba có sự kết hợp tốt sẽ tạo nên một bức tranh rất đẹp, nếu không có chi phí nhiều thì khi thiết kế sẽ tiết kiệm được rất nhiều chi phí phát sinh cho việc thi công, biết được những việc cần thiết phải làm để đầy đủ tạo hình đẹp cho một CLB bida chuyên nghiệp. Tất nhiên bida là một không gian giải trí, việc các chi tiết trần, tường, sàn sẽ có nhiều chi tiết trang trí để khách hàng có thể check-in không gian. Việc trang trí này tùy thuộc vào các chủ cơ sở, và tùy vào nhu cầu thực tế từng khu vực và giá thành mình có thể nhận vào khi kinh doanh cũng như tỷ lệ cạnh tranh.

3. Quy trình thiết kế & thi công CLB bida tiêu chuẩn giảm thiểu rủi ro từ A–Z
Bước 1: Khảo sát mặt bằng: Việc khảo sát này có thể trao đổi trực tiếp thông qua các nền tảng mạng xã hội hoặc các cách thức liên lạc khác nhau, để nắm thêm thông tin. Khi đã trao đổi cũng như nắm bắt được ý tưởng và phong cách làm việc, sẽ cùng CĐT đi khảo sát và đánh giá tiềm năng của mặt bằng, điều này rất quan trọng. (Miễn phí ở TP.HCM và có tính phí ở tỉnh)
Bước 2: Lên concept bản vẽ bố trí và layout mặt bằng: Khi đã khảo sát và đánh giá về mặt bằng sẽ tiến hành bản vẽ layout mặt bằng để CĐT hình dung được CLB bida mình sẽ như thế nào (tất nhiên là đã ký kết hợp đồng). Từ đây sẽ được tư vấn chi tiết, phân tích rõ về bản vẽ và phân tích về hành vi của khách hàng để đạt được bản vẽ tốt nhất phục vụ việc kinh doanh thành công.
Bước 3: Triển khai bản vẽ kỹ thuật và báo giá thi công
Bước 4: Thi công hoàn thiện
Bước 5: Setup bàn – ánh sáng – phụ kiện bida tiêu chuẩn theo bản vẽ
Bước 6: Kiểm tra & bàn giao & quyết toán

4. Chi phí thiết kế & thi công CLB bida (Cập nhật 2026)
-
Chi phí thiết kế: Tùy thuộc vào nhu cầu của CĐT mong muốn, thông thường sẽ từ 150.000 VNĐ/m² đến 400.000 VNĐ/m² tùy vị trí và nhu cầu của thị trường nơi CĐT phải làm. Càng cạnh tranh và càng chi tiết nhiều trong bản vẽ thì chi phí càng cao.
-
Chi phí thi công nội thất & MEP: Tùy vào bản vẽ chi tiết.
-
Chi phí bàn bida – phụ kiện: 35 triệu – 200 triệu/bàn tùy các mẫu mã bàn.
-
Chi phí vận hành ban đầu: Sẽ được tư vấn kỹ vào các chi phí ban đầu như nhân sự, số lượng bao nhiêu, số tiền và các chi phí khác.
-
Báo giá minh bạch – không phát sinh: Đây là yếu tố kiên quyết để hài hòa giữa CĐT và Công ty bida Thịnh Kent, chúng tôi không bán sản phẩm, chúng tôi bán giá trị chất xám.
5. Mẫu thiết kế CLB bida đẹp & chuyên nghiệp


Các phối cảnh thiết kế của Cty Bida Thịnh Kent CLB đã hiện hữu.


Sự kiện khai trương các CLB bida do Cty bida Thịnh Kent thiết kế và thi công trọn gói
6. Những lỗi thường gặp khi tự thi công CLB bida?
Khi bạn không phải là chuyên gia trong lĩnh vực của mình, thì tất nhiên lỗi là điều khó tránh khỏi, dưới đây là các lỗi thường gặp phải và rất khó sửa chữa khi đi vào hoạt động dẫn đến kết quả kinh doanh không tốt.
-
Vị trí mặt bằng không đẹp
-
Bố trí công năng thiếu hoặc dư thừa diện tích quá nhiều
-
Khoảng cách bàn sai tiêu chuẩn
-
Công năng phụ thiếu hoặc thiếu diện tích
-
Ánh sáng không đúng màu, đặt không đúng vị trí của ánh sáng
-
Bàn ghế sơ sài, không cạnh tranh
-
Kỹ thuật về máy lạnh, quạt hút, xử lý khói thuốc không đúng
-
Âm thanh không đều, chỗ to chỗ nhỏ, và chất lượng kém
Và rất nhiều lỗi khác không thể liệt kê hết.
7. Vì sao chọn Bida Thịnh Kent để tư vấn thiết kế thi công một CLB bida tiêu chuẩn?
“Chúng tôi không làm việc vì tiền, chúng tôi làm việc vì đam mê” – Thịnh Kent
-
Kinh nghiệm trên 7 năm và đã thiết kế, thi công nhiều công trình dự án liên quan đến bida và các ngành nghề F&B khác.
-
Đơn vị rõ ràng về pháp lý và minh bạch trong việc báo giá, tránh phát sinh chi phí khi đã ký kết hợp đồng.
-
Cam kết tiến độ rõ ràng – độ bền của tất cả sản phẩm.
-
Kế hoạch làm việc chi tiết và rõ ràng.
Lựa chọn Bida Thịnh Kent ngay để tối ưu chi phí & sở hữu CLB bida chuyên nghiệp nhất.
Hotline - 0902689777 (KTS Nam)